Tegninger til byggesøknad
Vi tegner det du trenger for å søke kommunen — presist, profesjonelt og i DDS CAD. Fra tilbygg og garasjer til fasadeendringer og bruksendring.
Hva trenger du tegninger til?
Vi leverer komplette tegningssett for byggesøknad — plantegninger, fasadetegninger, snittegninger og situasjonsplan. Alt tegnet i DDS CAD.
Tilbygg
Utvide boligen i bredden med nytt areal på bakkeplan.
Påbygg
Bygge oppover med ny etasje eller heve taket.
Garasje og carport
Frittstående eller tilknyttet garasje og carport.
Bod og anneks
Mindre bygg på tomten — bod, anneks eller uthus.
Fasadeendring
Nye vinduer, dører eller endring av fasadens uttrykk.
Terrasse og veranda
Overbygd terrasse, veranda eller balkong.
Merk: Vi leverer kun tegninger og er ikke ansvarlig søker. Tegningene kan brukes som grunnlag i din byggesøknad til kommunen, enten du søker selv eller gjennom en ansvarlig søker.
Om oss
Collington Tegning holder til i Lillestrøm og leverer tekniske tegninger for byggesøknader til kommunen. Vi jobber i DDS CAD og tegner alt fra plantegninger og fasader til snitt og situasjonsplaner.
Vi tar de mindre prosjektene — tilbygg, garasjer, boder, fasadeendringer og bruksendringer — og jobber hovedsakelig med privatpersoner som skal bygge om eller utvide boligen sin.
Har du et prosjekt i tankene? Ta kontakt for en uforpliktende prat, så finner vi ut hva du trenger.
Hva vi leverer
- Plantegninger
- Fasadetegninger
- Snittegninger
- Situasjonsplan
Verktøy
Alle tegninger produseres i DDS CAD — et profesjonelt BIM-verktøy for teknisk prosjektering.
Beliggenhet
Lillestrøm, Akershus — men vi kan ta oppdrag over hele landet.
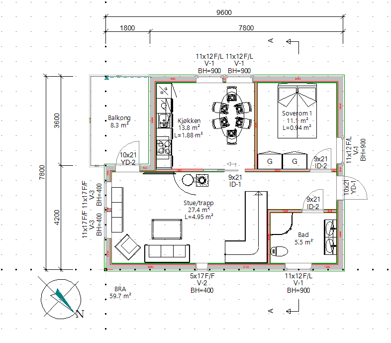
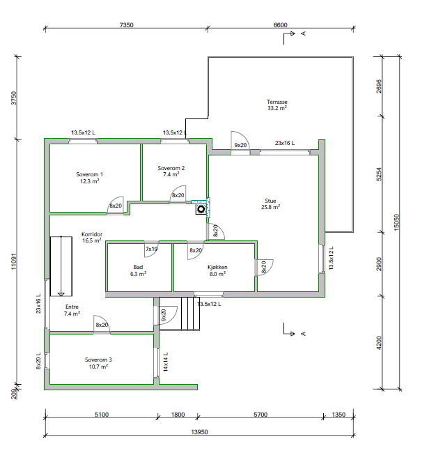
Portefølje
Et utvalg av prosjekter vi har tegnet. Hvert prosjekt inkluderer komplette tegningssett levert til byggesøknad.






Ta kontakt
Fortell oss om prosjektet ditt, så tar vi en uforpliktende prat om hva du trenger.
E-post
tegning@collington.noTelefon
416 28 637Sted
Lillestrøm
Pris
Pris avhenger av prosjektets omfang og kompleksitet. Ta kontakt med en beskrivelse, så gir vi deg et uforpliktende prisoverslag.